前回よりご紹介している目黒区祐天寺の平野屋米店改装プロジェクト、vol.2の今回はショップデザインについてご紹介いたします。
前回のヒアリングで頂いたキーワードを元に、まずは内装デザインのスケッチをおこしました。

デザインテーマは「米蔵」。
床や壁はコンクリート打ちっ放しの仕上げで、土間のような空間を作ります。
店内什器は全体的に木で構成することで、温かみも感じさせる雰囲気になるようデザインしました。
続いて外観デザイン。

入口のガラス戸など既存のまま活かせる部分はそのまま残し、暖簾やテントは新しく貼替えることでモダンな雰囲気に生まれ変わります。
平野屋米店の「平」をモチーフにしたショップロゴは、施主でもある四代目店主によるデザインです。
古くからのお客様も新しいお客様にも受け入れられるような、親しみやすいロゴデザインとなりました。
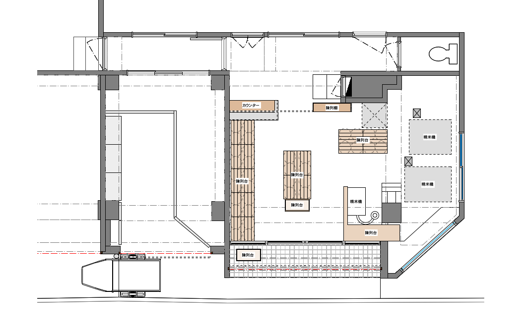
こちらは実際のレイアウトプラン。

長年の営業により雑然としていた商品陳列をすっきりとまとめ、買い回りしやすく、また運営もしやすい店内を目指しました。
古くからある大型の精米機はあえて見せることで、米蔵の雰囲気をより感じて頂けるようにしています。
ここからさらにブラッシュアップを重ね、いよいよ着工です。

今回はショップデザインについて詳しくご紹介させて頂きました。
次回はいよいよ工事~オープンの様子をお伝えしますので、次回もぜひお楽しみに!
