「ナチュラルな空間と北欧家具」

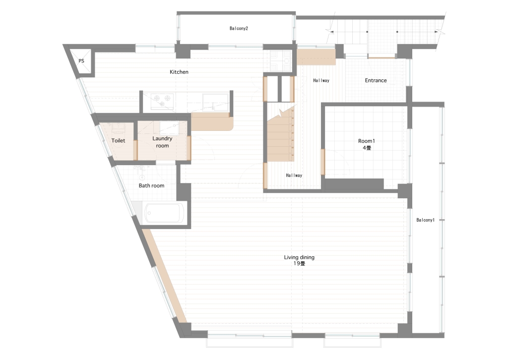
千葉県習志野市は都内へのアクセスが便利なベッドタウン。30代のご夫婦からのリクエストは「現状間取りが窮屈なので出来るだけリビングを広くしたい。白基調の空間でシンプルに。床はオーク天然素材。家具は北欧のモノで考えているのでそれが合うような空間にしたい……」それから「DJが趣味なのでDJ機器とレコードのコレクションを空間にマッチさせたい」。ご夫婦の趣味や将来の生活スタイルを考慮しながら完成したお住まいは、光を多く取り込んだ開放的で暮らしやすい空間として喜んでいただいております。

1414_1000dpi解像度300_小川邸_01
1414_1000dpi解像度300_小川邸_02
1414_1000dpi解像度300_小川邸_03
1414_1000dpi解像度300_小川邸_04
1414_1000dpi解像度300_小川邸_05
1414_1000dpi解像度300_小川邸_06
1414_1000dpi解像度300_小川邸_09
1414_1000dpi解像度300_小川邸_10
1414_1000dpi解像度300_小川邸_11
1414_1000dpi解像度300_小川邸_12
1414_1000dpi解像度300_小川邸_13
1414_1000dpi解像度300_小川邸_14
1414_1000dpi解像度300_小川邸_15
1414_1000dpi解像度300_小川邸_16
previous arrow
next arrow
1414_1000dpi解像度300_小川邸_01
1414_1000dpi解像度300_小川邸_02
1414_1000dpi解像度300_小川邸_03
1414_1000dpi解像度300_小川邸_04
1414_1000dpi解像度300_小川邸_05
1414_1000dpi解像度300_小川邸_06
1414_1000dpi解像度300_小川邸_09
1414_1000dpi解像度300_小川邸_10
1414_1000dpi解像度300_小川邸_11
1414_1000dpi解像度300_小川邸_12
1414_1000dpi解像度300_小川邸_13
1414_1000dpi解像度300_小川邸_14
1414_1000dpi解像度300_小川邸_15
1414_1000dpi解像度300_小川邸_16
previous arrow
next arrow
before
after
場所千葉県習志野市
用途戸建物件
家族構成3人
設計期間約1ヵ月
工期約1ヵ月
面積70.35平米(21.3坪)

before & after

「ビフォーアフター」

工事完了後、引き渡しの瞬間はドラマティックです。「こんなに綺麗で素敵になるなんて……」お客様からの喜びの声はリフォームの仕事をしてきて本当に良かったといつも感じます。一般的に悪条件と呼ばれる古い物件や狭い物件などをお客様にご満足いただける空間に変えてしまう事が空間デザインの醍醐味だと思います。

before
after

< すまいのリフォームへ戻る